首頁 > 房屋出售 > 誠昱/安定南科整新傳統車墅
第一房屋仲介 - 誠昱/安定南科整新傳統車墅

誠昱/安定南科整新傳統車墅

透天/別墅      1198萬

系統編號

物件區域
745台南市安定區

物件地址
港子尾

地坪
29.31 坪

總建坪
39.87 坪

室內坪數
39.87 坪

主建物坪
38.87 坪

附屬建物坪數
1 坪

車位
車庫    

總樓層
3 樓

位於樓層
1~3 樓

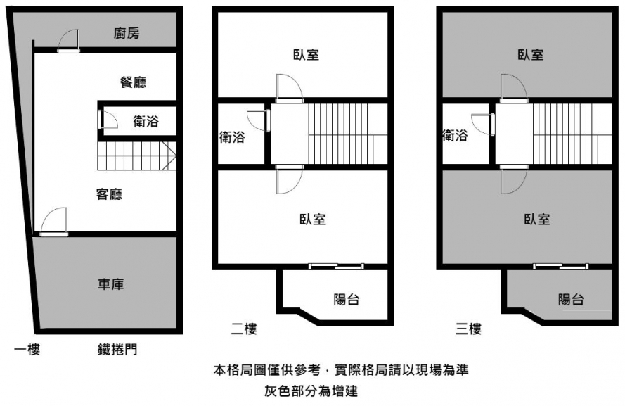
格局
4房2廳3衛2陽台

房屋座向
朝東

採光面數
2 面採光

建物結構
鋼筋混凝土(RC)

建築完工
1996年 屋齡約29年

臨路寬度
約3 米路

特色說明
1.近安定港口、南科,生活便利
2.傳統車庫別墅,格局方正,通風採光佳
3.近安定交流道,交通網路便利
4.屋況好,免整理,自住、出租兩相宜

※以上資訊如有記載錯誤,一律依謄本登記簿為準

 - 誠昱/安定南科整新傳統車墅
 - 誠昱/安定南科整新傳統車墅
 - 誠昱/安定南科整新傳統車墅
 - 誠昱/安定南科整新傳統車墅
 - 誠昱/安定南科整新傳統車墅
 - 誠昱/安定南科整新傳統車墅
 - 誠昱/安定南科整新傳統車墅
 - 誠昱/安定南科整新傳統車墅
 - 誠昱/安定南科整新傳統車墅
 - 誠昱/安定南科整新傳統車墅
 - 誠昱/安定南科整新傳統車墅
 - 誠昱/安定南科整新傳統車墅
 - 誠昱/安定南科整新傳統車墅
推薦物件...

誠昱/大面寬雙店面潛力建.

誠昱/大面寬雙店面潛力建.
1656 萬

誠昱/安中路四段整新車庫.

誠昱/安中路四段整新車庫.
1028 萬

誠昱/民生路一段4坪建地

誠昱/民生路一段4坪建地
368 萬

誠昱/成大商務全配套房Ⅰ

誠昱/成大商務全配套房Ⅰ
438 萬

誠昱/鹽水獨家全新超值車.

誠昱/鹽水獨家全新超值車.
1088 萬

誠昱/下營正10米路方正.

誠昱/下營正10米路方正.
550 萬

誠昱/善化南科之心二房+.

誠昱/善化南科之心二房+.
1168 萬

誠昱/五期正樓中樓高樓層.

誠昱/五期正樓中樓高樓層.
698 萬


更多..
地圖
分享到臉書